おすすめ物件情報
2025.11.19
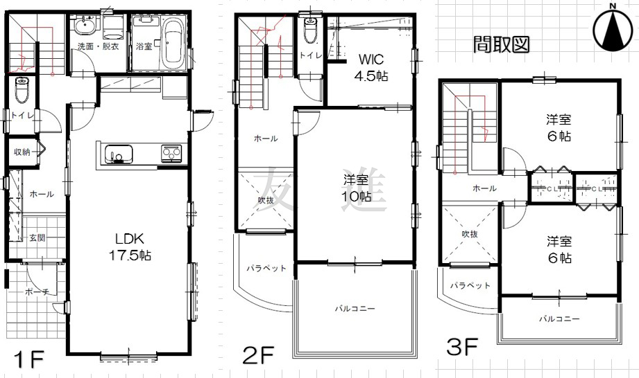
姫路市新在家3丁目(姫路駅)3階建 3LDK
所在地/姫路市新在家3丁目
交通/JR / 姫路駅 徒歩33分/神姫バス / 9分 南八代(停歩6分)
価格/3,080万円
間取り/3LDK+WIC
チェックポイント!
バス・トイレ
浴室暖房、オートバス、追焚機能、シャワー付洗面化粧台、温水洗浄便座、浴室に窓あり
キッチン
カウンターキッチン、システムキッチン、食器洗浄乾燥機、IHクッキングヒーター、2口コンロ
設備・サービス
全居室収納、ウォークインクローゼット、エアコン2台以上、シューズインクローゼット、床下収納、モニター付インターホン、ディンプルキー、防犯カメラ、全居室フローリング、上水道、下水道、都市ガス、プロパンガス、電気、エアコン、ワイドバルコニー、サンルーム、間接照明、照明器具、火災警報器(報知機)
閑静な住宅街で人気校区の新規物件!

間取り










